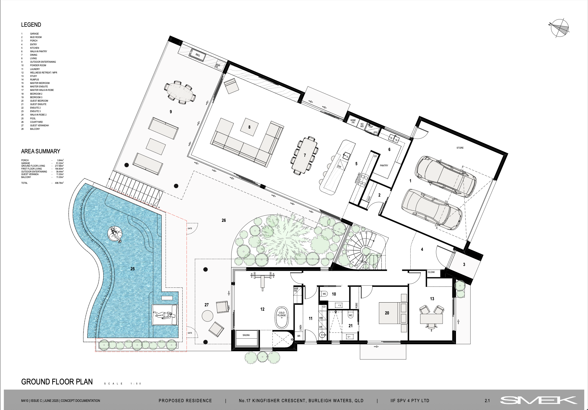
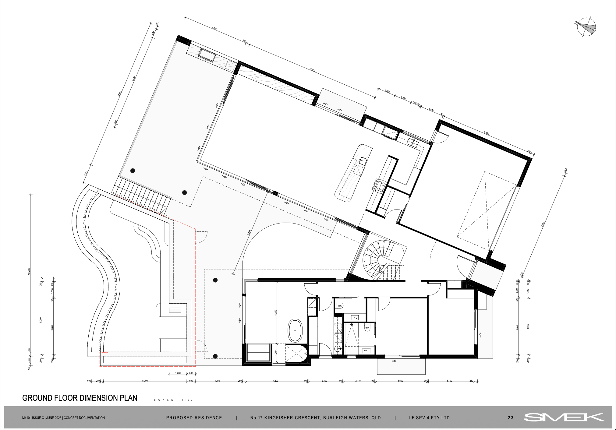
A Statement of Modern Coastal Elegance
The Burleigh Waters residence reimagines coastal living through bold geometry and refined detailing. Its distinctive façade features soft curvature, vertical timber screening, and cascading greenery that dissolves the boundary between structure and landscape.
Inside, vast glass panels invite natural light and frame sweeping views of the pool and fire pit, creating a seamless dialogue between indoor and outdoor space.
Every curve, joint, and junction was executed with technical mastery, a showcase of ROMAAC’s precision and commitment to architectural excellence.
Key Elements
- Curved masonry façade with feature timber battens
- Infinity-edge pool with tiered fire pit zone
- Integrated courtyard and open-plan living
- Bespoke joinery and natural stone finishes
- Full home automation and energy-efficient systems









.jpg)





.webp)

.jpg)
.jpg)







.jpg)
.jpg)
.jpg)
.jpg)






















.jpg)
.jpg)
.jpg)
.jpg)
.jpg)
.jpg)
.jpg)
.jpg)

.jpg)
.jpg)
.jpg)
.jpg)

.png)